Проект "Непохожее и динамичное жилое пространство"

Проект "Непохожее и динамичное жилое пространство"

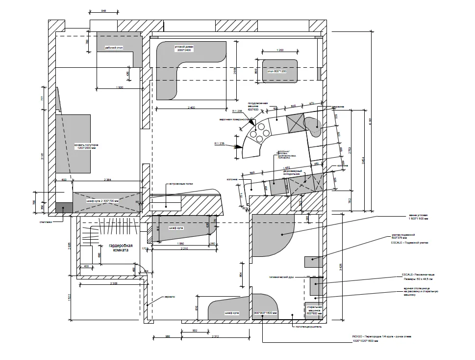
Главной задачей при проектировании интерьера общей площадью 80 м2 это создание современного жилого пространства - непохожего и динамичного, для молодого человека, начинающего самостоятельную жизнь, лаконичное и без лишних трудно эксплуатируемых деталей.

Черно-белая глянцевая кухня
Глянцевый натяжной потолок с встроенный вытяжкой
Белые глянцевые шкафы в прихожую>>>

Основной концепцией послужила идея объединения пространства прихожей, гостиной и кухонной зоны. Основным объединяющим элементом выступил потолок, плавно объединяя разные пространства  и указывая направление движения. Плавные линии и сдержанность цвета, уравновешивают друг друга.

Проект интерьера 80 м2
Потолок как основной объединяющий элемент
Глянцевые кухни без ручек>>>

Спальня решена в более мягких цветах. Открытая прихожая и встроенный шкаф как в коридоре так и в спальне кардинально решает задачу хранения вещей, идеально вписываясь в заданную стилистику интерьера, выгодно дополняя его.

Прихожая с черным глянцевым шкафом-купе
Белая гостиная с черными глянцевыми акцентами
Глянцевые тумбы в гостиную>>>

Проект выполнен в городе Иркутск, салон Ателье мебели Mr.Doors на улице Декабрьских событий 125.

Дизайнер Mr.Doors – Новоселова Анна.

Дизайнер: Архитектор-дизайнер Леонтьева Екатерина Павловна

ПОЛУЧИТЕ БЕСПЛАТНУЮ КОНСУЛЬТАЦИЮ ДИЗАЙНЕРА

Подберём идеальное решение для вашего интерьера

*
*