Проект "Комфортное жилое пространство"

Проект "Комфортное жилое пространство"
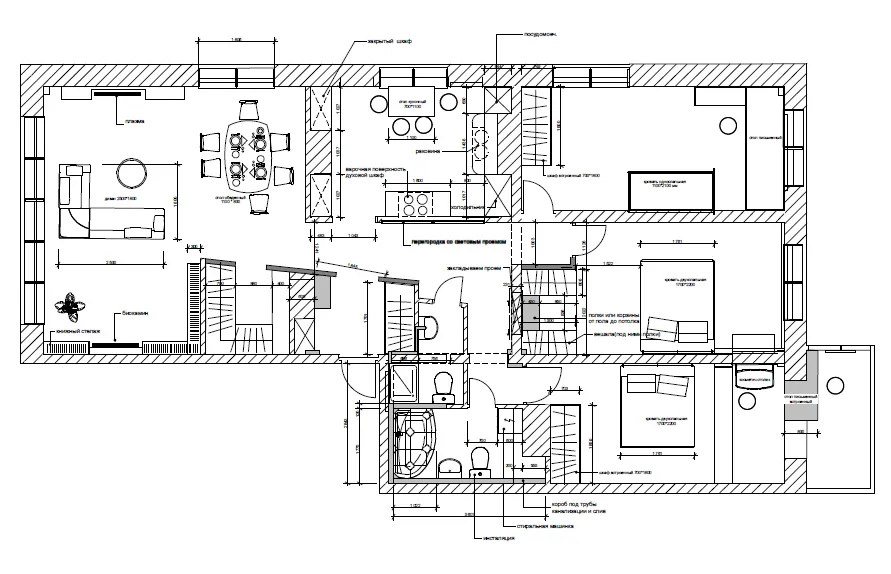
Проект интерьера 120 м2

Основной идеей и задачей интерьера, было создание комфортного жилого пространства для семьи из четырех человек общей площадью 120 кв.м.

Кухня со стеклянной перегородкой
Бело-серая кухня с металлическими вставками
Бело-серые кухни>>>

Кухня, в которой за ужином собирается семья, продолжает цветовую палитру и стилистическую линию гостиной, хотя и расположена независимо.

Хозяева выразили пожелание объединить в одно пространство гостиную и столовую, а зону кухни перенести, объединив и одновременно отделив ее  от общего жилого пространства, что решено было в дальнейшем с помощью стеклянной перегородки, так же перенос основного и  создание дополнительного сан.узла.  с душевой кабиной.

Три спальные комнаты - для родителей, дочери (21год) и сына (14лет). Каждый, с собственным виденьем своего жизненного пространства. При проектировании интерьера пространство оптимизировалось, для решения множества функциональных задач. В чем существенно помогла  встроенная мебель от Mr.Doors.

Просторная гостиная-столовая с панорамными окнами и растениями
Серая спальня с растительными элементами

Просторная гостиная с диванной зоной, ранее задуманные картины над телевизором заменены  навесными шкафами, в которых стоит ценное вино. Книжный стеллаж со встроенным  в него камином, находится в отдельной зоне «релакс», дополненной удобным креслом с массажем и чтения книг.

Светло-серые стенки в гостиную>>>

Встроенный шкафы-купе с использованием декоративного черного стекла в белом профиле. И как украшение интерьера - декоративные вставки из панелей отделанных пленкой «Рейв».

Встроенный шкаф-купе с декоративным черным стеклом
Светлая мягкая мебель из экокожи

Спальня для подростка выполнена, с использованием античных элементов декора,  мебель Mr.Doors, отвечающая всем запросам и функциональным задачам для тинэйджера, лаконично вписываясь в интерьер  в средиземноморских тонах.

Встроенные шкаф-купе с использованием декоративного зеркала «Рейн» в  спальне, выигрышно увеличивает пространство, изящно украшая белыми нитями рисунка.

Серые шкафы в прихожую>>>

Интерьер и мебель квартиры позволяет каждому уединиться в пространстве собственных интересов и собраться в уютной обстановке дружной семьи.

Рабочее место в комнате подростка
Спальня подростка  с античными элементами декора

Проект выполнен в городе Иркутск, салон Ателье мебели Mr.Doors на улице Декабрьских событий 125.

Дизайнер Mr.Doors – Новоселова Анна.

Дизайнер: Архитектор-дизайнер Леонтьева Екатерина Павловна

ПОЛУЧИТЕ БЕСПЛАТНУЮ КОНСУЛЬТАЦИЮ ДИЗАЙНЕРА

Подберём идеальное решение для вашего интерьера

*
*